Project Update:
NYS Historic homeownership tax credit applications are now being accepted by NY SHPO!
CLICK HERE to find information about the tax credit program, FAQs, instructions, and the application.
See PUBLIC MEETINGS section below for more information on:
- NYS Historic Homeownership Tax Credit Webinar – Thursday, March 12th, 2026 @ 6:00PM. CLICK HERE for the link to join or see additional Zoom details under PUBLIC MEETINGS below.
- Cobb’s Hill Historic District Final Public Meeting (virtual) – Tuesday, May 19th, 2026 @ 6:00PM
Project Background
In 2021, The Landmark Society of Western New York, on behalf of the City of Rochester, completed a citywide Historic Resources Survey to identify individual properties, sites, and potential historic districts that meet the criteria for listing in the National Register of Historic Places, and to create a comprehensive inventory of historically significant resources within the city. As part of that survey, several areas surrounding Cobb’s Hill Park were identified for their significance in Architecture, Horticulture/Landscape Architecture, and Community Planning & Development.
Building on these findings, in December 2023 The Landmark Society, in partnership with Bero Architecture, submitted a proposal to the Cobb’s Hill Historic District Committee to prepare a National Register nomination for the area. The consultant team was formally selected in February 2024.
In March 2024, the Committee applied for a Preserve NY grant to support a portion of the project, which was successfully awarded in August 2024. Preserve NY is a regrant partnership of the New York State Council on the Arts (NYSCA) and the Preservation League of New York State, made possible with the support of the Office of the Governor and the New York State Legislature, with generous additional support from the Robert David Lion Gardiner Foundation.
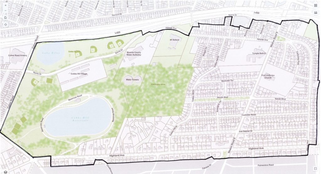
With funding in place, the Cobb’s Hill Historic District Committee and the Southeast Area Coalition (SEAC) engaged The Landmark Society to complete a National Register of Historic Places nomination for the Cobb’s Hill Historic District. The proposed district includes the surrounding residential neighborhood, Cobb’s Hill Park, Washington Grove, and Brighton Cemetery (see proposed district map below).
PROPOSED COBB’S HILL HISTORIC DISTRICT MAP
Who is involved?
The Landmark Society will perform the work of the preservation consultant, completing the extensive research, writing, and communication with SHPO necessary for a National Register nomination. Bero Architecture will be part of the consultant team, focusing on the Cobbs Hill Park, Washington Grove, and Brighton Cemetery portions of the nomination. Landmark Society staff will assist the neighborhood with fundraising efforts, holding public meetings, and spreading the word about this project.
The Cobbs Hill Historic District Committee will lead the charge on fundraising and spreading the word. For more information please contact cobbshillhistoricdistrict@gmail.com.
As a 501(c)(3), the Southeast Area Coalition (SEAC) will act as the fiduciary agent for the neighbors, handling private donations, the Preserve NY Grant, and the ESL Community Impact Grant that was awarded for the Cobbs Hill Historic District nomination.
The NY State Historic Preservation Office (SHPO) administers the State and National Register of Historic Places programs. Their staff will work with The Landmark Society to review the draft district nomination, provide feedback, and scheduling the nomination for the State Review Board. Once approved by the State Review Board, SHPO will officially list the district in the State Register of Historic Places and send the nomination to the National Park Service. SHPO also administers the Historic Tax Credit programs, which homeowners of contributing properties will become eligible for once the district is listed in the State Register of Historic Places.
The National Park Service (NPS) oversees the final step of listing the historic district in the National Register of Historic Places.
Project funding & Donations
As of June 2025, the $34,000 project budget is fully funded. Thanks to generous gifts from neighbors, the Preserve NY grant, a gift from St. Thomas Episcopal Church, and a grant from ESL Community Impact, fundraising is now complete!
Next Steps
National Register Historic District Nomination Process:
- Landmark and Bero staff fieldwork & research (September 2024 - June 2025)
- Submit draft nominations to Cobb's Hill Historic District Committee and NY SHPO.
- Property owners may begin applying for the historic tax credit program.
- Make revisions, as requested by NY SHPO
- NY SHPO schedules nomination for a quarterly State Review Board (anticipated June 2026 SRB meeting)
- SHPO forwards nomination to National Park Service for final National Register approval
- The Cobb's Hill Historic District is listed in the State and National Registers of Historic Places! (anticipated mid-2026)
Stay Connected!
If you’d like to stay up-to-date on the project and receive meeting invitations, you can sign up for the Cobbs Hill Historic District Committee’s project mailing list.
Public Meetings
NYS Historic Homeownership Tax Credit Webinar – Thursday, March 12th, 2026 @ 6:00PM
Topic: NYS Historic Homeownership Tax Credit Webinar
Time: Mar 12, 2026 06:00 PM Eastern Time (US and Canada)
Join Zoom Meeting
https://us02web.zoom.us/j/82236256064?pwd=40xAXuXyflAgi55XwLyVvQv3OjNadz.1
Meeting ID: 822 3625 6064
Passcode: 490020
One tap mobile
+16465588656,,82236256064# US (New York)
+16469313860,,82236256064# US
Cobb’s Hill Historic District Final Public Meeting – Tuesday, May 19th, 2026 @ 6:00PM (Zoom link will be linked here two weeks in advance).
Public Meeting recordings:
Below are the recorded public meetings that The Landmark Society held for the nearby Highland Park area historic districts. These meetings were held virtually via Zoom and include all the same information from the in-person public meetings we have held for the Cobb’s Hill Historic District project.
Note: While the information is the same, the cover slide, photographs used, timeline, and district map will be different. The Cobb’s Hill Historic District proposed boundary map can be viewed above.
HIGHLAND PARK INITIAL PUBLIC MEETING RECORDING:
HIGHLAND PARK FINAL PUBLIC MEETING RECORDING:
FAQs
Does listing our neighborhood in a National Register Historic District restrict what I can do to my home?
NO. The National Register of Historic Places historic district is an HONORARY designation. There are no restrictions to private property owners unless there is state or federal funding or permitting involved in a project.
What’s the difference between a National Register Historic District and a City Preservation District?
A City Preservation District is a part of the City of Rochester’s Zoning Code. Alterations to the exterior of properties within a Preservation District require a Certificate of Appropriateness. Demolition is prohibited. National Register districts offer no protections or restrictions when private money is being used. Note: most properties within the Cobb’s Hill Neighborhood are included in the City of Rochester’s Designated Buildings of Historic Value list. This list is based on a 1986 survey, updated in 2000 undertaken by the City.
Who qualifies for the NYS Historic Homeowners Tax Credit program?
Owner occupied homes located in a qualifying census tract (all of the City of Rochester is in a qualifying tract) and a National Register historic district.
What type of work qualifies for tax credits?
Kitchens & bath remodels, porch repairs, paint, HVAC, window repairs, floor refinishing, plumbing, electrical, etc. Sitework/landscaping, detached garages and carriage houses, tools, and appliances do not qualify. (Learn more at the link below).
How do I apply for tax credits?
Before beginning any work, complete the Part 1 / Part 2 application detailing your proposed work. Submit to the State Historic Preservation Office. You must receive approval prior to starting work for expenses to be eligible for the credit. NY SHPO will accept your application as soon as they have accepted the Resource List and draft nomination.
Still have QUESTIONS? Contact Megan Hillyard, Director of Preservation Services, at mhillyard@landmarksociety.org.
>>Click here to learn more about the NYS Historic Homeowners Tax Credit program
If you have specific questions about the tax credit program, you can contact Christina Vagvolgyi with the NY State Historic Preservation Office (SHPO) at: 518-268-2217 or Christina.Vagvolgyi@parks.ny.gov.
>>Click here to learn more about the National Register of Historic Places